New Build Estate
New Build Estate
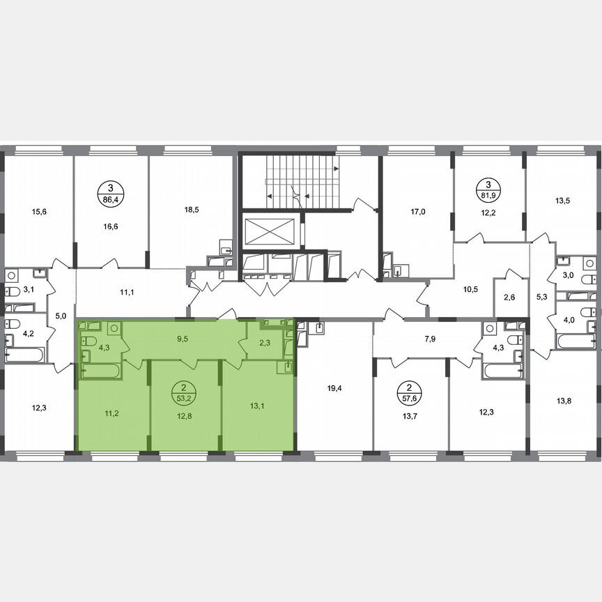
2-к. квартира, 53,2 м², 6/17 эт.
2-к. квартира, 53,2 м², 6/17 эт.
2-к. квартира, 53,2 м², 6/17 эт.
2-к. квартира, 53,2 м², 6/17 эт.
2-к. квартира, 53,2 м², 6/17 эт.
2-к. квартира, 53,2 м², 6/17 эт.
2-к. квартира, 53,2 м², 6/17 эт.
2-к. квартира, 53,2 м², 6/17 эт.
2-к. квартира, 53,2 м², 6/17 эт.
Город-парк «Переделкино Ближнее»

2-к. квартира, 53,2 м², 6/17 эт.

14 983 010 ₽
от 75 080 ₽ / мес.


Название ЖК: Город-парк «Переделкино Ближнее»
Адрес: п. Внуковское, дер. Рассказовка, корп. 2
Район: Внуковское
Этаж: 6 из 17
Комнат: 2 комнатная квартира
Площадь: 53,2 м²
Цена м²: 281 636 ₽ за м²
Метро: Мичуринец, растояние 900 м, пешком 16–20 мин.
Апартаменты: Нет
Особенности: Есть акции
Просмотров: 17

Город-парк «Переделкино Ближнее»

Москва, п. Внуковское, дер. Рассказовка, корп. 1

Сдача дома 3 кв. 2013 — 2 кв. 2027

Станция метро: Рассказовка, 11–15 мин.

Срок сдачи: 3 кв. 2013 — 2 кв. 2027

Класс жилья: Комфорт

Тип жилья: Квартиры

Отделка: Без отделки и с отделкой

Количество корпусов: 76

Этажность: 1 - 17

Тип дома: Монолит

Парковка для жителей: 600

Парковка для гостей: 13853

Есть акции

Год основания 1990

188 домов сдано в 6 ЖК

17 домов строится в 3 ЖК

АБСОЛЮТ Недвижимость

Девелоперская компания «Абсолют Недвижимость» является партнером Инвестиционной Группы «Абсолют» и реализует крупные инвестиционные проекты жилой и коммерческой недвижимости, земельных участков в Москве и ближнем Подмосковье. В основе успеха компании – многолетний опыт и инновационный подход в продажах, который обеспечивает высокий уровень обслуживания. Финансовыми партнерами являются крупнейшие банки России, в числе которых «Сбербанк», «ВТБ 24», «РайффайзенБанк», «Уралсиб», «Возрождение» и другие. В каждом жилом комплексе создается полноценная инфраструктура с современными детскими садами, школами, безопасными спортивными и детскими площадками, благоустроенными дворами и авторскими интерьерами входных групп. Крупные реализуемые проекты жилой недвижимости – это города-парки «Переделкино Ближнее» и «Первый Московский», жилые комплексы бизнес-класса «Западное Кунцево» и Резиденции «Сколково», жилые комплексы «Внуково», «Химки 2019», «Люберцы» и «Новоград Павлино». Среди коттеджных поселков известны «Александровы Пруды», «Лисичкин лес», «Певчее» и «Цветочный», из объектов коммерческой недвижимости – БЦ «Омега Плаза».

19,2 млн ₽

Средняя стоимость квартиры

301 308 ₽/м²

Средняя стоимость кв. метра

Отзывы о застройщике


Продается двухкомнатная квартира в городе-парке «Переделкино Ближнее».
Общая площадь квартиры — 53,2 кв. М, этаж 6 из 17.
Срок сдачи — 3 квартал 2026 года.
Тип дома — монолитный.

Акция «Поймай Май»:
- выгодные условия на бронирование квартиры.
- бесплатная регистрация договора.
- участие в розыгрыше с гарантированными подарками.
*срок проведения акции с 26.04.25 г. По 12.05.25 г.
Информация об организаторе акции, правилах ее проведения, количестве призов, сроках месте и порядке их получения уточняйте в офисе продаж.

Город-парк «Переделкино Ближнее» расположен в 8 км от Мкад по Боровскому шоссе.

Транспортная Доступность:

- 10 минут пешком до Мцд-4 «Мичуринец».
- 15 минут пешком до станции метро «Рассказовка» Солнцевской линии.
- 10 минут на машине до станции метро «Филатов Луг» Сокольнической линии.
- 30 минут до центра Москвы.
- Прямой выезд на дорогу Солнцево-Бутово-Варшавское шоссе, минуя жилую застройку всего ЖК.

Благоустройство:

Новая фаза строительства уникальна своим расположением — в шаговой доступности парк на Лукинской улицы, река Алёшинка.
На территории 18 фазы строительства будут построены 2 монолитных жилых корпуса повышенного комфорта разной этажности 7, 17 этажей. А также многоуровневый паркинг на 300 м/мест.
Вход в жилую часть корпусов каждой секции осуществляется с двух сторон — с наружного контура жилого дома и со стороны дворового пространства, предусмотрен безбарьерный доступ.

Внутренняя Инфраструктура:

В рамках данной фазы, для жителей предусмотрено создание пространства, свободного от машин — благоустроенные огороженные дворы с современными детскими и спортивными площадками, разделенными на зоны по возрастам.
На территории проекта есть все необходимые объекты социальной и бытовой инфраструктуры: детские сады, школы, магазины, паркинги, аптеки, поликлиники, пожарная часть и др.

Авторский Дизайн:

Современный монолитный дом переменной этажности 7 и 17 этажей. На фасаде предусмотрены корзины для установки кондиционеров. Входные группы домов выполнены по авторскому дизайну. Колясочные располагаются при входе, велопарковка на -1 этаже.

Похожие квартиры

Есть вопросы?
Мы перезвоним Вам в течение нескольких минут