New Build Estate
New Build Estate
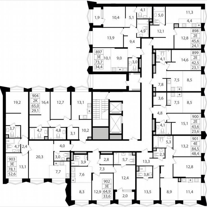
3-к. квартира, 84,5 м², 7/17 эт.
3-к. квартира, 84,5 м², 7/17 эт.
3-к. квартира, 84,5 м², 7/17 эт.
3-к. квартира, 84,5 м², 7/17 эт.
3-к. квартира, 84,5 м², 7/17 эт.
3-к. квартира, 84,5 м², 7/17 эт.
3-к. квартира, 84,5 м², 7/17 эт.
ЖК «Петровский парк II»

3-к. квартира, 84,5 м², 7/17 эт.

46 475 000 ₽
от 232 887 ₽ / мес.


Название ЖК: ЖК «Петровский парк II»
Адрес: Петровско-Разумовский проезд, вл. 1/23
Район: Савёловский
Этаж: 7 из 17
Комнат: 3 комнатная квартира
Площадь: 84,5 м²
Цена м²: 550 000 ₽ за м²
Метро: Гражданская, растояние 900 м, пешком 11–15 мин.
Апартаменты: Нет
Просмотров: 5

ЖК «Петровский парк II»

Москва, Петровско-Разумовский проезд, вл. 1/23

Сдача дома 1 кв. 2025

Станция метро: Петровский парк, 11–15 мин.

Срок сдачи: 1 кв. 2025

Тип жилья: Квартиры

Отделка: Без отделки

Количество корпусов: 1

Этажность: 2 - 23

Тип дома: Монолит

Год основания 2013

23 дома в 8 ЖК

6 домов в 5 ЖК

РГ-Девелопмент

РГ-Девелопмент — динамично развивающаяся девелоперская компания, в портфеле которой сегодня более 1,7 млн м2 недвижимости. За стабильные темпы строительства, строгое соблюдение сроков и качественные характеристики объектов компания «РГ-Девелопмент» неоднократно удостаивалась наград в профессиональных конкурсах и премиях. Компания входит в топ-20 крупнейших застройщиков по объему вводу жилья в Москве по данным ЕРЗ. Мосгосэкспертиза присвоила показатель надежности А2 (очень высокий уровень надежности — риск незначительный). Агентство «Национальные кредитные рейтинги» присвоило компании «РГ-Девелопмент» кредитный рейтинг А- со стабильным прогнозом. Стратегия РГ-Девелопмент — приобретение качественных строительных площадок под девелоперские проекты, максимально эффективная реализация их потенциала для создания лучших объектов на рынке, отвечающих самым современным требованиям к материалам и технологиям строительства. Компания активно участвует в программах, реализуемых Правительством Москвы, в первую очередь в сфере улучшения экологии и создания комфортной городской среды.

Отзывы о застройщике


Номер квартиры: 901.

Этаж: 7.

Площадь: 84.5000. Жилой комплекс «Петровский парк II» представляет собой монолитные здание с переменной этажностью.

Застройщиком спроектированы квартиры с различными планировками. Внутренняя отделка не выполняется.

Благоустройство огороженной и охраняемой территории включает в себя организацию детских и спортивных площадок, зон отдыха и озеленение. Предусмотрены подземная парковка и частный детский сад. На территории комплекса будут расположены магазины, рестораны и кафе. В шаговой доступности находятся детские сады, школы, медицинские учреждения, аптеки, продовольственные магазины и парки.

Ввод объекта в эксплуатацию запланирован на 2 квартал 2025 года.
Есть вопросы?
Мы перезвоним Вам в течение нескольких минут