New Build Estate
New Build Estate
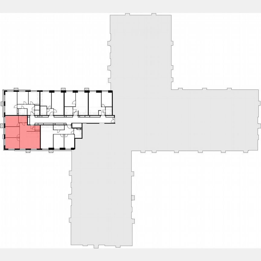
3-к. апартаменты, 73,2 м², 7/30 эт.
3-к. апартаменты, 73,2 м², 7/30 эт.
3-к. апартаменты, 73,2 м², 7/30 эт.
3-к. апартаменты, 73,2 м², 7/30 эт.
3-к. апартаменты, 73,2 м², 7/30 эт.
3-к. апартаменты, 73,2 м², 7/30 эт.
Комплекс апартаментов «AIST RESIDENCE»

3-к. апартаменты, 73,2 м², 7/30 эт.

19 083 240 ₽
от 95 627 ₽ / мес.


Название ЖК: Комплекс апартаментов «AIST RESIDENCE»
Адрес: ул. Намёткина, вл. 10Д
Район: Черёмушки
Этаж: 7 из 30
Комнат: 3 комнатная квартира
Площадь: 73,2 м²
Цена м²: 260 700 ₽ за м²
Метро: Воронцовская, растояние 800 м, пешком 6–10 мин.
Апартаменты: Да
Просмотров: 10

Комплекс апартаментов «AIST RESIDENCE»

Москва, ул. Намёткина, вл. 10Д

Сдача дома 2 кв. 2025

Станция метро: Воронцовская, 6–10 мин.

Срок сдачи: 2 кв. 2025

Класс жилья: Комфорт

Тип жилья: Апартаменты

Отделка: Без отделки

Этажность: 2 - 29

Тип дома: Монолит

Парковка для жителей: 97

Парковка для гостей: 3

Год основания 1994

44 дома сдано в 7 ЖК

1 дом строится в 1 ЖК

МонАрх

ГК «МонАрх» – одна из ведущих организаций столичного стройкомплекса, специализирующаяся на индивидуальном монолитном домостроении. Благодаря колоссальному опыту и применению прогрессивных технологий Группа берется за самые сложные объекты и возводит их в кратчайшие сроки, зарекомендовав себя на рынке, как надежный партнер. За 27-летнюю историю ГК «МонАрх» накопила колоссальный опыт строительства и заслужила высокую репутацию ответственного генподрядчика. Сегодня «МонАрх» входит в число крупнейших строительных организаций в Москве. ГК «МонАрх» специализируется на индивидуальном монолитном строительстве: она – одна из немногих структур, которая выполняет проект и производит работы по монолитному строительству, разрабатывая технологии для каждой операции. Применение прогрессивных технологий и современной техники позволяет значительно улучшить качество и сократить сроки строительства.

Отзывы о застройщике


Номер квартиры: 138.

Этаж: 7.

Площадь: 73.2000.

Комплекс апартаментов «Aist Residence» представляет собой каркасно-блочное здание.

Выполняется предчистовая отделка.

Для жителей дома выполняется организация площадок для игр детей, занятий спортом, отдыха и прогулок. Озеленение решается путем устройства газонов, посадки деревьев и кустарников. Первые этажи займут коммерческие помещения. В шаговой доступности находятся детские сады, школы, магазины, кафе и остановки общественного транспорта.

Ввод объекта в эксплуатацию запланирован на 4 квартал 2024 года.
Есть вопросы?
Мы перезвоним Вам в течение нескольких минут