New Build Estate
New Build Estate
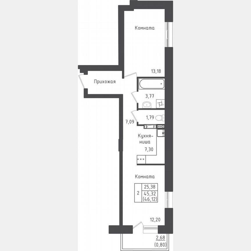
1-к. квартира, 46,1 м², 4/5 эт.
1-к. квартира, 46,1 м², 4/5 эт.
1-к. квартира, 46,1 м², 4/5 эт.
1-к. квартира, 46,1 м², 4/5 эт.
ЖК «Зеленый Оазис-Город»

1-к. квартира, 46,1 м², 4/5 эт.

7 841 442 ₽
от 39 294 ₽ / мес.


Название ЖК: ЖК «Зеленый Оазис-Город»
Адрес: с/п Габовское, стр. 1
Район: Московская область
Этаж: 4 из 5
Комнат: 1 комнатная квартира
Площадь: 46,1 м²
Цена м²: 170 096 ₽ за м²
Метро: Лобня, растояние , пешком
Апартаменты: Нет
Просмотров: 6

ЖК «Зеленый Оазис-Город»

Москва, Московская область, Лобня

Сдача дома 2 кв. 2030

Срок сдачи: 2 кв. 2030

Тип жилья: Квартиры

Отделка: С отделкой

Количество корпусов: 10

Этажность: 1 - 5

Тип дома: Монолитно-кирпичный

Парковка для жителей: 28230

Парковка для гостей: 420

Год основания 2004

10 домов строится в 1 ЖК

КОНЦЕПТ ИММО ДЕВЕЛОПМЕНТ

Общество с ограниченной ответственностью СПЕЦИАЛИЗИРОВАННЫЙ ЗАСТРОЙЩИК КОНЦЕПТ ИММО ДЕВЕЛОПМЕНТ

Номер квартиры: 19.

Этаж: 4.

Площадь: 46.1200. Жилой комплекс «Зеленый Оазис-Город» представляет собой комплексную застройку, состоящую из 10 монолитно-кирпичных зданий.

Застройщиком спроектированы квартиры с различными планировками. Осуществляется отделка «под ключ».

Благоустройство прилегающей территории включает в себя организацию детской и спортивной площадки, зон отдыха и озеленение. На территории жилого комплекса реализована концепция «двор без машин», предусмотрены: детский сад, средняя школа, торговый центр, спортивные и детские площадки. В 10 минутах пешком от ЖК расположены два больших озера.

Строительство ведется в несколько этапов. Ввод в эксплуатацию дома 1 назначен на 2 квартал 2030 года. Дата реализации всего проекта неизвестна.

Похожие квартиры

Есть вопросы?
Мы перезвоним Вам в течение нескольких минут