New Build Estate
New Build Estate
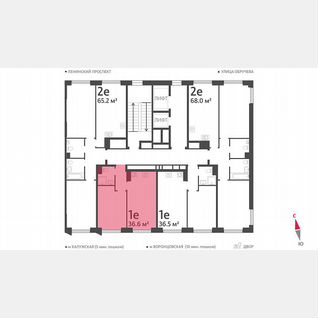
2-к. квартира, 58,1 м², 1/5 эт.
2-к. квартира, 58,1 м², 1/5 эт.
2-к. квартира, 58,1 м², 1/5 эт.
2-к. квартира, 58,1 м², 1/5 эт.
2-к. квартира, 58,1 м², 1/5 эт.
2-к. квартира, 58,1 м², 1/5 эт.
2-к. квартира, 58,1 м², 1/5 эт.
ЖК «ЮгТаун»

2-к. квартира, 58,1 м², 1/5 эт.

11 112 920 ₽
55 687 ₽ / мес.


Название ЖК: ЖК «ЮгТаун»
Адрес: ул. Нины Петровой, д. 8, корп. 1, стр. 1
Район: Ленинградская область
Этаж: 1 из 5
Комнат: 2 комнатная квартира
Площадь: 58,1 м²
Цена м²: 191 272 ₽ за м²
Метро: Санкт-Петербург, растояние , пешком
Апартаменты: Нет
Особенности: Есть акции Чистовая отделка От застройщика
Просмотров: 18

ЖК «ЮгТаун»

Санкт-Петербург, п. Шушары, Пулковское ш., корп. 2.5

Сдача дома 1 кв. 2024 — 3 кв. 2026

Срок сдачи: 1 кв. 2024 — 3 кв. 2026

Класс жилья: Комфорт

Тип жилья: Квартиры

Отделка: Без отделки и с отделкой

Количество корпусов: 15

Этажность: 1 - 5

Тип дома: Монолитно-кирпичный

Парковка для жителей: 9670

Парковка для гостей: 126

Есть акции Чистовая отделка От застройщика

Год основания 2003

117 домов сдано в 16 ЖК

31 дом строится в 7 ЖК

КВС

Строительная компания ООО «КВС» присутствует на строительном рынке с 2003 года. Сейчас это крупный холдинг с рядом подразделений. Предприятие выполняет полный цикл строительных мероприятий: от проектных работ до сдачи объекта «под ключ». Компания осуществляет технадзор и управление, берет на себя функции заказчика-застройщика, генподрядчика, инвестора и проектировщика.

13,1 млн ₽

Средняя стоимость квартиры

218 491 ₽/м²

Средняя стоимость кв. метра

Отзывы о застройщике


«югтаун» — это малоэтажный проект, состоящий из домов высотой всего 5 этажей. Все дворы закрыты от машин и посторонних, а территория находится под видеонаблюдением. Это обеспечит жителям олимпийских кварталов безопасность. Любимым местом для встреч и прогулок станет собственный парк «Олимпийские надежды», оформленный в античной тематике.

Похожие квартиры

Есть вопросы?
Мы перезвоним Вам в течение нескольких минут