New Build Estate
New Build Estate
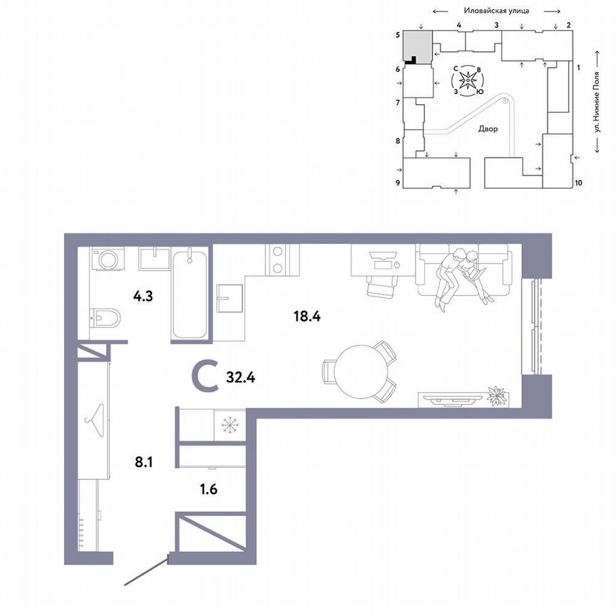
Квартира-студия, 32,4 м², 21/31 эт.
Квартира-студия, 32,4 м², 21/31 эт.
Квартира-студия, 32,4 м², 21/31 эт.
Квартира-студия, 32,4 м², 21/31 эт.
Квартира-студия, 32,4 м², 21/31 эт.
Квартира-студия, 32,4 м², 21/31 эт.
Квартира-студия, 32,4 м², 21/31 эт.
Квартира-студия, 32,4 м², 21/31 эт.
ЖК «Страна.Заречная»

Квартира-студия, 32,4 м², 21/31 эт.

15 128 571 ₽
от 75 810 ₽ / мес.


Название ЖК: ЖК «Страна.Заречная»
Адрес: ул. Иловайская, з/у 3/4
Район: Марьино
Этаж: 21 из 31
Комнат: Квартира-студия
Площадь: 32,4 м²
Цена м²: 466 931 ₽ за м²
Метро: Перерва, растояние 700 м, пешком 11–15 мин.
Апартаменты: Нет
Просмотров: 6

ЖК «Страна.Заречная»

Москва, ул. Иловайская, з/у 3/4

Сдача дома 1 кв. 2028

Станция метро: Марьино, 16–20 мин.

Срок сдачи: 1 кв. 2028

Класс жилья: Комфорт

Тип жилья: Квартиры

Отделка: Без отделки и с отделкой

Количество корпусов: 10

Этажность: 2 - 34

Тип дома: Монолит

Парковка для жителей: 507

Парковка для гостей: 149

Год основания 2006

57 домов в 22 ЖК

43 дома в 19 ЖК

Страна Девелопмент

«Страна Девелопмент» — девелоперская компания полного цикла, реализующая крупные проекты в сфере жилой и коммерческой недвижимости в Тюмени, Москве и Московской области, Санкт-Петербурге, Екатеринбурге и Новосибирске. ∙ На рынке недвижимости с 2006 года ∙ 10 место в РФ по объему строительства* ∙ С 2022 г. в списке системообразующих застройщиков РФ

Отзывы о застройщике


Номер квартиры: 1153.

Этаж: 21.

Площадь: 32.4000. Жилой комплекс «Страна. Заречная» представляет собой комплексную застройку из 10 разновысотных секций.

Застройщиком спроектированы квартиры с различными планировками. В разных секциях квартала представлены разные варианты отделки квартир. На выбор жителей: базовая Shell&Core, предчистовая White box, отделка ванной или полный дизайнерский ремонт в одном из 5 стилей на выбор.

Благоустройство прилегающей территории включает в себя организацию детских игровых и спортивных площадок, гостевой автостоянки, а также озеленение. На первых этажах появится коммерческая галерея с магазинами, салонами красоты, Пвз и ресторанами. В шаговой доступности находятся школы, детские сады, медицинские учреждения, торговые центры и супермаркеты.

Ввод объекта в эксплуатацию запланирован на 1 квартал 2028 года.
Есть вопросы?
Мы перезвоним Вам в течение нескольких минут